Продається таунхаус 123 кв.м. район Епіцентру. Без ремонту (№ 22-357-281)
Ціна: 62 500 $

Характеристики
| Ціна: | 62 500 $ |
|---|---|
| № об'єкта: | 22-357-281 |
| Тип: | таунхаус |
| Поверхів: | 2 |
| Спалень: | 3 |
| Площа будинку: | 123 м2 |
| Ділянка: | 2 сот |
| Кількість кімнат: | 3 |
| Додатково: | гараж |
Адреса: Вінницька, Вінниця, Ленінський
Продається таунхаус 2-х поверховий. Тиха вулиця біля Метро та Епіцентру Вінниці.
0 поверх - гараж та підвал з розміром кухні (окремий вихід з гаражу на вулицю - чудове рішення таунхаусу)
1 поверх - вітальня + малий санвузол +кухня (з виходом на двір)
2 поверх - дитяча+ великий санвузол + спальня і гарероб (також є 2 балкони)
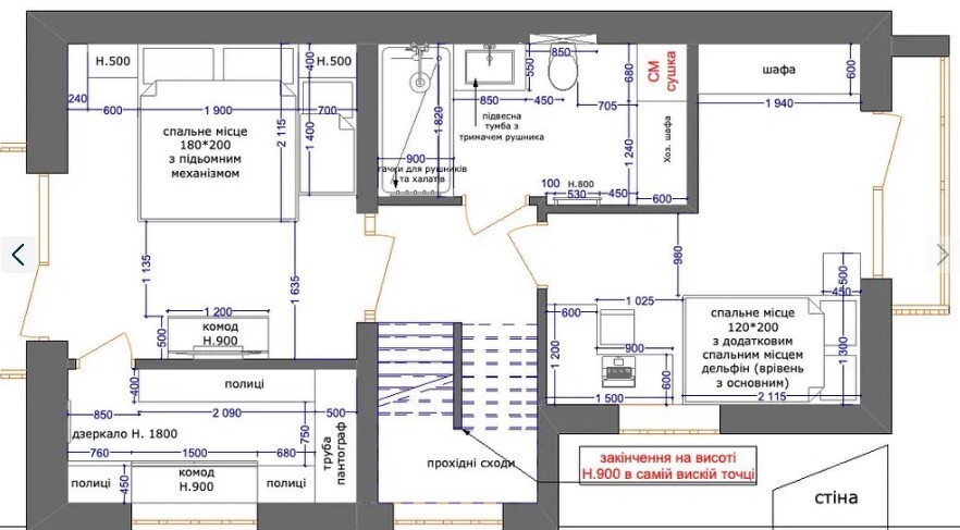
Плануваннря показує наскільки зручно можна облаштувтаи даний таунхаус!
Все готово , є всі комунікації та можна приступати до ремонту.
Останнє що лишилося - облагородження території та зроблять окремий вихід з вулиці до таунхаусу







