Продається 1-но кімнатна квартира в Новобудові. Р-н Вишенька. Без ремонту (№ 212-707-570)

Ціна: 34 500 $
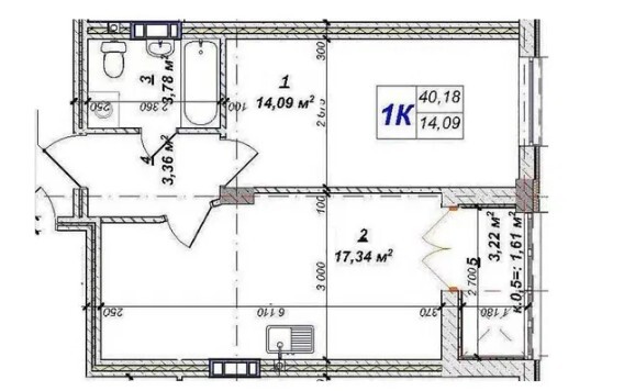
Характеристики
| Ціна: | 34 500 $ |
|---|---|
| № об'єкта: | 212-707-570 |
| Кімнат: | 1 |
| Поверх: | 1 / 5 |
| Площа: | 40 / - / 17 м2 |
| Санвузол: | 1 роздільний |
| Автономне опалення: | + |
| Назва ЖК: | |
| Додатково: | новобудова |
Адреса: Вінницька, Вінниця, Вишенька, Костянтина Василенко
Терміново. Продається 1-но кімнатна квартира, р-н Вишенька.
Новобудова, введення в експлуатацію відбудеться у 2023 році. Тихий, мальовничий район поруч з Вишенським озером, зручна транспортна розв'язка.

