Продається житловий 2-х поверховий будинок, 135 кв.м. в Старому місті. (№ 22-366-856)
Ціна: 142 700 $

Характеристики
| Ціна: | 142 700 $ |
|---|---|
| № об'єкта: | 22-366-856 |
| Тип: | будинок |
| Поверхів: | 2 |
| Спалень: | 4 |
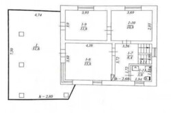
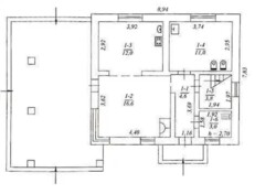
| Площа будинку: | 153 м2 |
| Ділянка: | 6 сот |
| Кількість кімнат: | 4 |
Адреса: Вінницька, Вінниця, Староміський
Продається новий, сучасний з дизайнерським ремонтом будинок в Старому місті.
Загальна площа 135 кв.м.
Можливий продаж в кредит або розстрочку.
Поруч вся потрібна інфраструктура. Місце розташування відмінне.




















