Головна >> Оренда комерційної та торгівельної нерухомості >> Ріелтор Тищенко Катерина Анатоліївна >> Об'єкт №15114711
Здається комерційне приміщення на вул. Пирогова, прохідне фасадне, окремий вхід. (№ 15-114-711)
Ціна: 50 000 грн.

Адреса: Пирогова, 51, Вінниця, Вінницька, Ленінський
Характеристики
| Ціна: | 50 000 грн. |
|---|---|
| № об'єкта: | 15-114-711 |
| Тип: | торгівельні площі, кафе, бар, ресторан, об'єкт сфери послуг, інше |
| Поверх: | 1 / 5 |
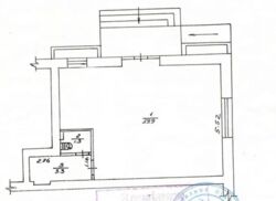
| Площа: | 44,5 м2 |
| Додатково: | окремий вхід |
Опис
Здам приміщення в районі Урожаю, площею 44, 5 кв.м, на першому поверсі будівлі. Може використовуватись під будь-який вид діяльності.
Орендна плата складає 50 000 грн. в місяць + комунальні платежі.
При підписанні угоди орендна плата сплачується за 2 місяці, та комісія агенції нерухомості одноразово





