Здається в оренду приміщення в торговельному комплексі в центрі міста Вінниці. (№ 15-115-324)
Ціна: 154 250 грн. + комунальні

Характеристики
| Ціна: | 154 250 грн. + комунальні |
|---|---|
| № об'єкта: | 15-115-324 |
| Тип: | торгівельні площі, об'єкт сфери послуг |
| Поверх: | 1 / 3 |
| Площа: | 617 м2 |
Адреса: Вінницька, Вінниця, Замостянський, Кармелюка, 2
Здається в оренду приміщення в торговельному комплексі в центрі міста Вінниці.
На першому поверсі АТБ, Дніпро-М, Винний супермаркет, дрібні магазини, ресторани, набережна річки Південний Буг з фонтаном Рошен.
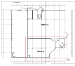
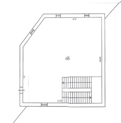
Приміщення розташоване на першому-другому-третьому поверсі. Площа загальна - 617кв.м., з них:
1. Хол І-го поверху - 114 кв.м. (можливе використання під торгову залу або профіль діяльності орендаря)
2. Хол ІІ-го поверху з торгівельним залом 404 кв.м. (можливе використання під торгову залу або профіль діяльності орендаря)
3. Хол ІІІ-го поверху - 99кв.м. (можливе використання під офіс, торгову залу або профіль діяльності орендаря).
Власний вхід з першого поверху та можливість вільного планування робочого часу свого приміщення.
Система вентиляції та кондиціонування. Є санвузол, великий запас по електроенергії. На фасаді будівлі є місце для зовнішньої реклами. Також є дизельний генератор (потужний та економічний). Який забузпечує безперебійну роботу орендарів. Велика парковка.
Витрати на комунальні послуги дуже низькі.
Вигідна ціна на ринку комерційної нерухомості м. вінниця! Всього 250 грн. за 1 кв.м.
Орендна плата складає 154 250 грн. в місяць + комунальні платежі.
При підписанні договору вноситься орендна плата за перший місяць, залогова сума та комісія агенції нерухомості одноразово.
Телефонуйте щоб дізнатись більше інформації та домовитись на перегляд.






























