Продається оздоровчий комплекс Радон в Старому місті. (№ 2-489-950)
Ціна: 4 000 000 $

Характеристики
| Ціна: | 4 000 000 $ | 
|---|---|
| № об'єкта: | 2-489-950 | 
| Тип: | об'єкт сфери послуг, готель, інше | 
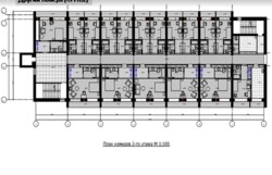
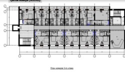
| Поверх: | 4 / 4 | 
| Площа: | 5289 м2 | 
| Ділянка: | 220 сот | 
| Додатково: | окремий вхід, парковка | 
Адреса: Вінницька, Вінниця, Староміський, Нагірна, 37
Оздоровчий комплекс Радон, без сумніву перлина міста Вінниці. Перебуваючи у серці історичного центру, в районі під назвою Старе місто, «Радон» дозволяє відчути всю красу відпочинку на природі прибуваючи всього в п'яти хвилинах їзди від центру Вінниці з його розвиненою інфраструктурою. Старе місто це - зелений парковий спальний район Вінниці в якому переважає приватний сектор і абсолютно відсутні завантажені транспортні магістралі. Комплекс «Радон» розташований в рекреаційній зоні, на березі річки Південний Буг на вершині зеленого лісистого пагорба. Прилеглі території включають в себе чудовий
парк, мальовничі скелі а так-же зручний пляж знаходиться неподалік човновою станцією.
На території розташовано існуюча будівля оздоровчого комплексу з теплопостачанням від власної дахової котельні. Також в будівлі змонтовано припливно-витяжна система вентиляції з рекуперацією тепла, що дозволяє шляхом регулювання подачі тепла і холоду створювати комфортний клімат в приміщеннях. Встановлена двоступенева система кондиціонування. Зліва біля входу встановлено чиллер для централізованого кондиціонування: система надає можливість індивідуального (зонального) кондиціонування повітря.
















 cpongarant@gmail.com
 cpongarant@gmail.com