Продається 2х кімнатна квартира в ЖК Сімейний комфорт. Чорнова. (№ 212-672-083)

Ціна: 48 000 $
Характеристики
| Ціна: | 48 000 $ |
|---|---|
| № об'єкта: | 212-672-083 |
| Кімнат: | 2 розд |
| Поверх: | 9 / 10 |
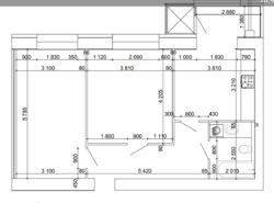
| Площа: | 69 / - / 16 м2 |
| Санвузол: | 1 сумісний |
| Балкон: | лоджія |
| Автономне опалення: | + |
| Назва ЖК: | Сімейний комфорт |
| Додатково: | новобудова |
Адреса: Вінницька, Вінниця, Староміський, немирівське шосе, 94е
Продається 2х кімнатна квартира в ЖК Сімейний комфорт.
Квартира з чудовим видом на місто. Зроблено перепланування (збільшили кухню), 11 секція ,9 поверх з 10, секція здана , можна розпочинати ремонт. Переуступка. ПЕРЕОФОРМЛЯЄТЬСЯ на нового власника.
Опалення: Індивідуальне газове;
















