Продається 1-но кімнатна квартира в р-ні Центру. ЖК Central Park Vinnytsia (№ 212-948-929)

Ціна: 58 500 $
Характеристики
| Ціна: | 58 500 $ | 
|---|---|
| № об'єкта: | 212-948-929 | 
| Кімнат: | 1 | 
| Поверх: | 4 / 20 ліфт | 
| Площа: | 48 / - / 12 м2 | 
| Санвузол: | 1 сумісний | 
| Балкон: | балкон | 
| Автономне опалення: | + | 
| Назва ЖК: | Central Park Vinnytsia | 
| Додатково: | новобудова | 
Адреса: Вінницька, Вінниця, Центр, пров. Цегельний, 12
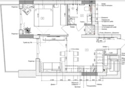
Продаж однокімнатної квартири в ЖК Central Park.
В квартирі вже встановлено систему водопостачання, каналізація та розведена тепла підлога.
Також встановлені лічильники теплової енергії.
Повністю розроблений дизайн проект по всій квартирі .
Зроблені виводи для вертикальних батарей. На лоджії є вихід , на які зі спальні та кухні площею майже 15 метрів (чудове місце для барбекю та зустрічі з друзями).
Продаж квартири по переуступці.
Здача будинку за пару місяців, а саме вересень 2024 року.
Це буде найбільший комплекс в місті , в якому будуть розважальні зони, місця для прогулянок, дитячі та спортивні майданчики, також зони для відпочинку, шопінгу, та величезний басейн.
За більш детальною інформацією звертайтеся за номером телефону.
Не упустіть таку можливість стати новими власниками цієї чудової квартири.
Квартира повністю підходить як для власного проживання так і під інвестицію. Квартира дійсно варта вашої уваги.
Розташування і оточення: тип двору: закритого типу (вхід, в'їзд обмежений)
Особливості планування: підігрів підлоги











