Продаж 1-но кімнатної квартири в новому будинку, без ремонту. Р-н ринку Урожай. (№ 212-966-639)

Ціна: 41 000 $
Характеристики
| Ціна: | 41 000 $ |
|---|---|
| № об'єкта: | 212-966-639 |
| Кімнат: | 1 |
| Поверх: | 2 / 3 |
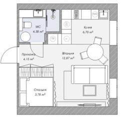
| Площа: | 33 / - / 5 м2 |
| Санвузол: | 1 сумісний |
| Автономне опалення: | + |
| Назва ЖК: | |
| Додатково: | новобудова |
Адреса: Вінницька, Вінниця, Ленінський, Марії Литвиненко Вольгемут, 18
Клубний будинок на Урожаї (9-smart квартир + комерційне приміщення)
Технічні характеристики:
-Опалення електричне 5 кВт
-Водопостачання центральне
-Каналізація центральна
-Чорнова штукатурка стін
-Базові точки електрики
-Радіатори та електричний котел
-Металопластикові вікна












