Продається 1-но кімнатна квартира в ЖК Central Park Vinnytsia (№ 212-974-939)

Ціна: 53 000 $
Характеристики
| Ціна: | 53 000 $ |
|---|---|
| № об'єкта: | 212-974-939 |
| Кімнат: | 1 |
| Поверх: | 11 / 15 ліфт |
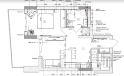
| Площа: | 47 / - / 21 м2 |
| Санвузол: | 1 сумісний |
| Балкон: | балкон |
| Автономне опалення: | + |
| Назва ЖК: | Central Park Vinnytsia |
| Додатково: | новобудова |
Адреса: Вінницька, Вінниця, Центр, Цегельний, 12
Ексклюзивні дві квартири, яких вже не буде в продажу, оскільки забудовник таких більше не будує.
Вже встановлено систему водопостачання, каналізація та тепла підлога. Встановлені лічильники теплової енергії.
Розроблений дизайн по кожній квартирі.
Зроблені виводи для вертикальних батарей.
Лоджії, вихід на які зі спальні та кухні площею майже 15 м!!! (Чудове місце для барбекю та зустрічі з друзями).
Переуступка
Здача будинку за пару місяців (вересень 2024)






